上野台中学校 体育館スタジオ uenodai school gym studio
上野台中学校 体育館スタジオの概要
 
				
						2011年に廃校となった、旧上野台中学校の体育館を活用した、室内スポーツ・大規模イベント向け 体育館スタジオです。学校ロケーション撮影、スポーツイベント、社内運動会などの用途でご利用いただけるスタジオです!
					
						上野台中学校 体育館スタジオは、小川町駅から車で国道254号経由 約7分、役場通り経由 約8分のところにあります。学校ロケーション撮影にぜひご活用ください。
					
ギャラリー
写真をクリックすると拡大表示します。
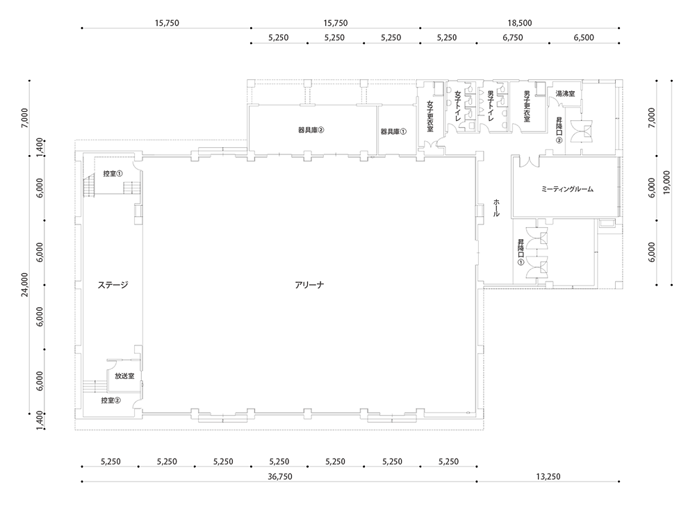
平面図
上野台中学校 体育館スタジオの平面図です。平面図は「PDFを表示する」から自由にダウンロード・印刷することができます。
平面図を表示する料金
料金は用途によって異なります。各料金表をご確認ください。
法人様向け スタジオご利用の場合
| 基本料金(8H) | 延長料金(1H) | |
|---|---|---|
| 体育館 | 110,000 | 13,750 | 
すべて税込表記
- 基本料金は、7時〜22時の間で連続した8時間のご利用の料金です。
- ご利用時間が8時間を超える場合は延長料金、0時〜7時・22時〜24時にご利用される場合は深夜早朝料金が1時間ごとに加算されます。 深夜早朝時間分は、延長料金に対して25%の割増料金となります。
- 営利目的のイベントでの利用の際は、上記金額とは異なります。 入場者1000人/日までの場合は上記金額の2倍、1001人以上の場合は別途お見積もりとなります。 また、対応できない場合もございますので、予めご了承ください。
基本料金に含まれるもの
基本料金には、スポーツ用品・備品・電気代が含まれます。
- 【体育館】体育館
ご利用の際の注意事項
- ご利用時間はスタジオ入りから撤収までの時間となり、セッティング・後片付けなども含まれます。
- 前日またはご利用時間外のセット建てこみが別途必要な場合は、必要時間をご連絡ください。
- 仮予約はご利用希望日の6か月前から承ります。ご予約の前に、スタジオ利用規約を必ずお読みください。 仮予約をされている日付に他のお客様から確定予約のお申込みがあった場合、弊社よりメールにてご連絡させていただきます。24時間以内にご返答いただけない場合はキャンセル扱いとなり、確定予約のお客様が優先となりますのでご了承ください。
- 仮予約は撮影当日の14日前までとなります。 予約確定のお申し込みが無い場合は自動キャンセルとなります。
キャンセルについて
キャンセル料金は以下の通りです。
- 予約確定時~61日前のキャンセル・・・レンタル料金の10%
- 60日前~31日前のキャンセル・・・レンタル料金の20%
- 30日前~8日前のキャンセル・・・レンタル料金の30%
- 7日前~2日前のキャンセル・・・レンタル料金の50%
- 前日~当日のキャンセル・・・レンタル料金の100%
運動会ご利用の場合
| プラン内容 | 料金 | 
|---|---|
| 基本プラン | 詳しくはお問い合わせください。 | 
| 撮影・編集 | 詳しくはお問い合わせください。 | |
| DVD作成 | 詳しくはお問い合わせください。 | |
| 昼食 | 詳しくはお問い合わせください。 | |
| 表彰式 | 詳しくはお問い合わせください。 | |
| 打ち上げ | 詳しくはお問い合わせください。 | |
| 宿泊手配 | 詳しくはお問い合わせください。 | |
| すべて税込表記 | ||
基本プランについて
運動会の企画、司会進行、音響オペレーター、運営スタッフ、看護師、保険、表彰状がセットになっています。
詳細について
詳しいプラン内容などは、越後屋運動会公式サイトをご覧ください。
ご予約はこちら
撮影スタジオ予約はこちら
				アクセス
越後屋上野台中学校 体育館スタジオ
〒355-0322 埼玉県比企郡小川町東小川2-22-1
0120-251-391(受付時間:土日祝除く9:00~18:00)
公共交通機関でお越しの方
- JR【八高線】小川町駅
- バス【小川町駅~小川パークヒル線 小川パーク行】小川町駅入口-三丁目(約10分)
- 徒歩(約3分)
お車でお越しの方
小川町駅より、国道254号経由 7分/ 役場通り経由 8分
嵐山小川IC出口(料金所) より 約6分
お車でお越しの方は、東小川小学校スタジオ 校舎裏にある駐車スペースをご利用ください。詳しくはスタッフまでお声がけください。
- グラウンド内は車両乗り入れ禁止となっております。
- 路上駐車は、近隣の皆様の迷惑となりますのでご遠慮ください。
- 駐車スペース内でのトラブルや事故などは一切責任を負いません。あらかじめご了承ください。
 
						 
						 
						 
						 
						 
						 
						 
						 
						 
						 
						 
						 
						 
						 
						 
						 
						 
						 
						 
						 
						 
						 
						 
						